Students Lettings Sales Request a Free Valuation

1 Bed Student Property - Flat To Let
North Road West, Plymouth

Price £156 Per Week

To discuss this property
call our office on:
01752 500 511
or arrange a viewing

Overview

Studio 5 (25 Sq M) is well equipped and offers all that you need in your accommodation. High quality accommodation an easy walk to Uni, The No Place Inn was formerly a pub which has been refurbished to provide high spec student accommodation. It is within easy walking distance of the city centre and Uni. There is a small courtyard garden with table and chairs. No hidden extras – all utilities, fibre optic wifi and FREE use of the laundry room are all included in the rent.
Studio 5 has a double bed, two metres of wardrobe space, bookshelves and a desk with executive style chair. The lounge area has comfy chairs, coffee table and dining table with chairs.
The kitchen has a good range of fitted cupboards with hob, microwave/convection oven and fridge with freezer compartment (there is also a large larder freezer just down the hall for the exclusive use of the studios). The ensuite shower room has a power shower, vanity basin with storage and heated towel rail.
– Free fast wireless internet
– Free use of laundry room
– All utilities are included in the rent
– Summer maintenance is carried out during July and August
Plymouth Uni 0.87 of a mile
Plymouth City College .6 of a mile

Location

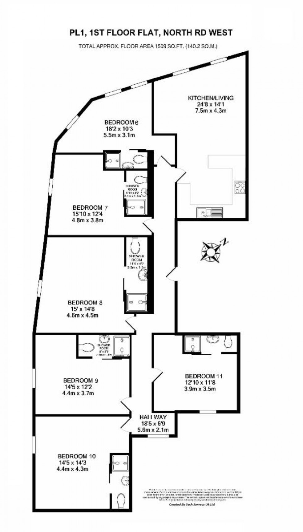
Floorplan

Floorplan for North Road West, Plymouth Floorplan for North Road West, Plymouth Floorplan for North Road West, Plymouth Floorplan for North Road West, Plymouth Floorplan for North Road West, Plymouth Floorplan for North Road West, Plymouth Floorplan for North Road West, Plymouth

2A Old Town Street, Plymouth

2A Old Town Street, Plymouth

£672 PCM

2A Old Town Street, Plymouth

2A Old Town Street, Plymouth

£672 PCM

2A Old Town Street, Plymouth

2A Old Town Street, Plymouth

£672 PCM

Tamar House - Classic Studio

Tamar House - Classic Studio

£737 PCM